今天是:2026年04月21日

设为首页  |  加入收藏

400-8552-111
番禺稀缺便宜的新建科技园办公室和厂房出售5002万平方

编  号: KF-38836

业务意向: 出售

所在区域: 番禺区

建筑结构: 水泥结构

建筑面积: 1000 m²

联 系 人: 王经理

价  格:5000 元/平米

联系电话:400-8552-111

所在地址: 广东-广州-番禺-大石

备注说明

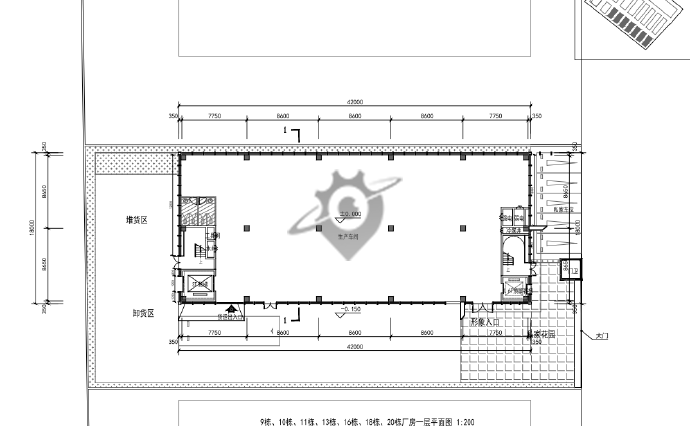
番禺稀缺便宜的新建科技园厂房出售,面积500平方起售进卖5000多元,面积500平方到13万平方都有,50年产权, 仅售5000多元左右每平方 广州国际科技城核心区域 番禺罕有·真独门独院纯独栋出售 项目核心价值?番禺50年国有红本现代工业厂房;?广州国际科技创新城核心,拥千亿级先进制造业集群;?湾区枢纽广台高速(金山大道出口)旁,3分钟上高速;?全玻璃幕墙设计,超甲级工业厂房形象标杆?番禺罕有真独门独院纯独栋,有天有地有花?园,部分楼栋电梯直达地下车库;?超高赠送,送花园送露台送拓展面积,双拼、独栋可享700-1000方超大私家花园,使用率达130-150%;?高标厂房,单层面积833-2650平,可分可合灵活组合,产品优势尽显;?超20万㎡高品质园区,独栋、双拼按需定制,高标厂房方正实用,通风采光一流; 项目概况项目地址:石基地段享南村万博配套土地性质:?M1工业用地总占地:?96亩总建面:?约20万㎡产品类型:?高标厂房+双拼厂房+独栋厂房产品面积:?高标厂房面积段:833-998-1324-1998-2649㎡;双拼、独栋厂房面积段:3306-5894-6570㎡主导产业:?汽车零部件及配件制造及其上下游产业、智能装备制造、电器机械、通信设备、灯光音响、新材料等行业 区位优势【高速】广台高速金山大道东出口距离项目仅1.5km,3分钟车程;【地铁】:广州地铁4号线官桥北站地铁口距离项目仅2km,7分钟车程;【高铁、城轨】:距离广肇惠城轨官桥北站仅2公里,7分钟车程;距离广州南站18公里,20分钟车程。【番禺商务区】:距番禺万博CBD商务区仅8公里,15分钟车程;【机场】:距离广州白云机场60公里,1小时车程;【港口】:距离广州番禺莲花山港口仅10公里20分钟车程,1小时车程可双向抵达广州南沙港、东莞虎门港; 配套完善『项目周边配套完善,项目周边10公里范围内环伺着国际科研基地-广州大学城、番禺繁华CBD-万博商务区、国家5A级景区-广州长隆、番禺区府市桥等一线城市醇熟配套资源。项目距南村镇中心区域仅约3公里,衣、食、住、行等生活配套一应俱全,便于企业纳才稳岗。』 产品鉴赏花园双拼独栋〖一企一栋,越独立越出众,彰显企业形象〗双拼、独栋3306-5894-6570㎡按需定制,为企业量身定做;独栋真独门独院设计,有天有地有花园番禺罕有;超高赠送,送花园送露台送拓展面积,双拼、独栋享700-1000㎡奢阔私家花园;首层实心地无限承重,满足企业不同类型使用需求;部分楼栋电梯直达地下车库 高标厂房全玻璃幕墙设计,彰显企业高端大气形象;首层8米设计荷载3吨,标准层6.6米层高,买一层用两层.1吨荷载,产品参数优势尽显;?833-2650平产品方正实用,可分可合灵活组合;集生产、研发、办公于一体化设计,满足不同企业使用需求;

品质厂房

MORE>>

番禺南村江南村二楼精装修现场直播间2400平出租

出租

租金:0.45元/平方/天

地区:番禺区

面积:2400m²

番禺主干道边35万平方高台厂房出租滴水11米丙二类

出租

租金:0.45元/平方/天

地区:番禺区

面积:35000m²

番禺化龙南大干线边君建物流园附近仓库7000平方出租可分租

出租

租金:0.45元/平方/天

地区:番禺区

面积:7000m²

广州市南沙东涌原房东厂房出租实量面积配套齐全形象一流

出租

租金:0.45元/平方/天

地区:番禺区

面积:2000m²

龙归一手房东租金12元厂房出租

出租

租金:0.45元/平方/天

地区:白云区

面积:10000m²

番禺区石楼潮田工业区全新简易厂房出租多个独门独院原房东

出租

租金:0.45元/平方/天

地区:番禺区

面积:2450m²

最新推荐

MORE>>

您可能感兴趣的厂房