备注说明
?番禺50年国有红本现代工业厂房;
?广州国际科技创新城核心,拥千亿级先进制造业集群;
?湾区枢纽广台高速(金山大道出口)旁,3分钟上高速;
?全玻璃幕墙设计,超甲级工业厂房形象标杆
?番禺罕有真独门独院纯独栋,有天有地有花园,部分楼栋电梯直达地下车库;
?超高赠送,送花园送露台送拓展面积,双拼、独栋可享310-1000方超大私家花园,使用率达130-150%;
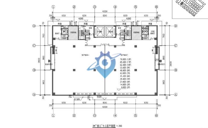
?高标厂房,面积600-1000-2600平,可分可合灵活组合,产品优势尽显;
?约25万㎡高品质园区,独栋、双拼按需定制,高标厂房方正实用,通风采光一流;

