备注说明
项目核心价值
番禺50年国有红本现代工业厂房;
广州国际科技创新城核心,拥千亿级先进制造业集群;
湾区枢纽广台高速(金山大道出口)旁,3分钟上高速;
全玻璃幕墙设计,超甲级工业厂房形象标杆
番禺罕有真独门独院纯独栋,有天有地有花园,部分楼栋电梯直达地下车库;
超高赠送,送花园送露台送拓展面积,双拼、独栋可享700-1000方超大私家花园,使用率达130-150%;
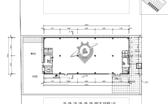
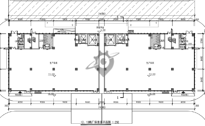
高标厂房,单层面积833-2650平,可分可合灵活组合,产品优势尽显;
超20万㎡高品质园区,独栋、双拼按需定制,高标厂房方正实用,通风采光一流;
项目概况
?土地性质:?M1工业用地
?总占地:?96亩
?总建面:?约20万㎡
?产品类型:?高标厂房+双拼厂房+独栋厂房
?产品面积:?高标厂房面积段:833-998-1324-1998-2649㎡;
双拼、独栋厂房面积段:3306-5894-6570㎡
配套完善
『项目周边配套完善,项目周边10公里范围内环伺着国际科研基地-广州大学城、番禺繁华CBD-万博商务区、国家5A级景区-广州长隆、番禺区府市桥等一线城市醇熟配套资源。项目距南村镇中心区域仅约3公里,衣、食、住、行等生活配套一应俱全,便于企业纳才稳岗。』
区位优势
【高速】广台高速金山大道东出口距离项目仅1.5km,3分钟车程;
【地铁】:广州地铁4号线官桥北站地铁口距离项目仅2km,7分钟车程;
【高铁、城轨】:距离广肇惠城轨官桥北站仅2公里,7分钟车程;距离广州南站18公里,20分钟车程。
【番禺商务区】:距番禺万博CBD商务区仅8公里,15分钟车程;
【机场】:距离广州白云机场60公里,1小时车程;
【港口】:距离广州番禺莲花山港口仅10公里20分钟车程,1小时车程可双向抵达广州南沙港、东莞虎门港;








