备注说明
南沙科技园
定制独栋?仅余3席
50年产权?5字头起
1600㎡-13000㎡灵动户型
总部办公、研发、生产制造、展示、配套等多功能复合
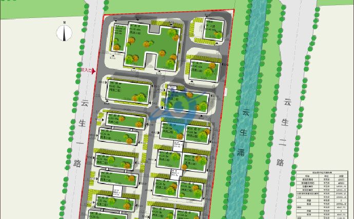
项目概况【占地面积】约?5万㎡(74亩)【建筑面积】约15万㎡【规划设计】16栋企业独栋、4栋多层厂房、1栋员工宿舍【园区配套】宿舍、食堂、商超、员工活动区【明星产品】独栋约4100-5500㎡,高层约1638-13000㎡【产业定位】项目产业面向智能制造、消费电子、电子商务行业【未来前景】国际一流智能制造业基地
【产品稀缺】花园式公园企业?独栋私域空间?稀缺花园?&滨河水轴——独栋厂房园区矩阵式布局产业分区,汇聚多样化企业,形成龙头带动,园区企业联动的势态
坐落水岸,滨河而筑,尽享天然风采
标杆产品??1?11#、12#、13#、14#、15#、16#5层独栋,总面积约5000㎡,可定制坐拥私家院落,客货梯靠边布置,保留完整生产空间
2?6#、7#、8#5层双拼独栋,总面积约4100㎡/8200㎡,可分可合核心筒边置,内部空间完整
3?高层产品,单层1638m?,单栋面积13000㎡空间规整,高荷载满足企业研发生产需求
?产品具体参数??【厂房层高】独栋首层6.9米,2/3层4.5米,4层4.2米,5层3.6米;高层首层7.95米,2层5.2米,3-8层4.5米【厂房承重】独栋首层2吨/㎡,2/3层0.8吨/㎡,4/5层0.65吨/㎡;高层首层2吨/㎡,标准层0.8吨/㎡【电梯配置】5000㎡独栋预留1台3T货梯,1台客梯,后期安装;4100㎡独栋,预留1台3T货梯,后期安装;高层共用1台3T货梯、1台5T货梯,1台客梯
【产业区域】:南沙7大产业区块蝶变中,汇聚科技创新资源,崛起新兴产业势力,架起开放合作桥梁,推动南沙产业高速发展项目位于南沙大岗穗港智造基地先进制造高地,被定位为南沙新区西部经济发展的重要引擎,项目定位以智能制造、消费电子、电子商务等相关产业集群为主,汇聚科技创新资源,崛起南沙新兴产业新势力,助力南沙产业格局蝶变。
【立体交通】处于粤港澳大湾区地理几何中心,毗邻两大轨道交通枢纽庆盛与横沥,半小时车程可链接珠江口两岸城市群,1小时通达湾区主要城市邻近广州番禺、佛山顺德、东莞虎门、深圳宝安等重大产业区块,集聚湾区优质产业。
高铁:广深港高铁城际:南珠中城际铁路(在建)、中南虎城际(规划)、肇顺南城际(规划)地铁:18号线、32号线(规划)、33号线(规划)高速:东新高速、广州绕城高速、狮子洋通道(在建)快速路:南沙港快速路机场:广州白云国际机场、深圳宝安国际机场、南沙通用机场(规划)
【产业片区】南沙先进制造业最活跃的板块,优质产业聚集项目地处南沙大岗穗港智造基地,目前该产业区块已有中船项目、中科宇航、北京精雕、中邮信源、平安物流、鼎飞智能、奥飞数据、中航云、瑞高新材料、捷安集团、泽亨智能、宝乐机器人等高端装备、船舶制造、先进制造、数据中心、物流等领域的项目落地。
【名企为邻】龙头引领,带动产业上下游入驻园区,构建全产业链生态集群通过产业投资及资源要素联动,成为集投资、生产、办公、运营、招商、展示为一体的智能制造产业平台。项目拟进驻上市企业:与企业总部为邻,拟引进3家上市公司,1高校学院入驻,10家省级龙头企业,形成资源优势互补文明蒙恬(广州)集团股份有限公司,国内领先的资讯科技领域头部运营商,已完成Ipo辅导备案








